Casa Milenium 225




Millenium 225 Plus o este casa de categorie si dimensiune medie, cu o suprafata utila totala de 123,6 mp, potrivita pentru regimul de constructii de case cu etaj. Spatiul intern satisface pretentiile de locuit ale unei familii de 4-5 membri.







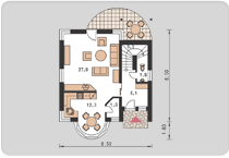
Plan parter (suprafete utile)
Camera de zi: 28,5 mp
Bucatarie: 11,7 mp
Spatiu depozitare: 1,9 mp
Toaleta: 3,5 mp
Hol intrare: 6,8 mp

Plan etaj (suprafete utile)
Spatiu depozitare: 2,0 mp
Dormitor matrimonial: 15,7 mp
Dormitor 1: 10,9 mp
Dormitor 2: 8,3 mp
Baie: 7,3 mp
Hol: 6,3 mp





Constructia unei case reprezinta o decizie importanta.Solutiile oferite de noi imbina avantajele unei constructii solide, cu viteza de montaj si fiabilitatea unei productii industriale.Contrar prejudecatilor existente, casele pe structura din lemn au o durata de viata apropiata de cea a constructiilor clasice, la un pret mult redus. Sunt compatibile cu DETALII orice tip de proiect arhitectural, indiferent de zona geografica de amplasare sau de complexitatea constructiei. Ofera un confort termic si fonic superior fata de cel al caselor clasice.